MOGYORÓD, HUNGARY
2025
| Chief Designer | Dániel Berecz – DVM Group Huba Ferenczi- DVM Group |
| Architecture | Zoltán Páricsy Győző Wittinger Bence N. Krajnyák Péter Tokaji Rebeka Kiss Gergely Bodnár Kinga Girus Tamás Kiss |
| Articles | Építészfórum |
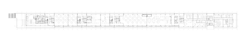
The renovated Paddock building and the new 10,000-seat grandstand at the Hungaroring were handed over in Mogyoród for the 40th anniversary of the Hungarian Grand Prix. It was an honor for us to participate in the design of the more than 340m long Paddock building, a project of such unique scale and complexity.








